置地松谷鸣翠
买房交流群-176群(41)
- 楼盘区域: 安徽 合肥市
- 项目地址: 繁华大道与松谷路交口向南50米
- 参考价格: 27000元/平方米
- 参考总价: 460万
- 预售许可证: 合房预售证第20240807号
- 物业类型: 住宅
- 楼盘状态 在售
- 开发商: 安徽置地投资有限公司
更多
交通配套
订阅楼盘最新动态,优惠、开盘早知道
本楼盘交流群
24人正在讨论
加入楼盘交流群,楼盘优劣全知道
楼盘资讯
置地松谷鸣翠
在售
住宅
均价
27000元/㎡
降价通知
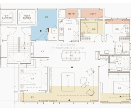
户型
三室四室
余房查询
地址
安徽 合肥市繁华大道与松谷路交口向南50米
发地址到手机
咨询底价
组团砍价
加入买房群
猜你喜欢
楼盘概述:
置地松谷鸣翠
