华宇林泉雅舍
买房交流群-51群(168)
- 楼盘区域: 安徽 合肥市 长丰县
- 项目地址: 长丰县谯城路与梦蝶路交口
- 参考价格: 7500元/平方米
- 参考总价: 67万
- 预售许可证: 长住建预售证第20227041号
- 物业类型: 住宅
- 楼盘状态 在售
- 开发商: 合肥业茂置业有限公司
更多
交通配套
订阅楼盘最新动态,优惠、开盘早知道
本楼盘交流群
290人正在讨论
加入楼盘交流群,楼盘优劣全知道
楼盘资讯
华宇林泉雅舍
在售
住宅
均价
7500元/㎡
降价通知
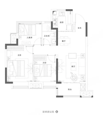
户型
三室四室
余房查询
地址
安徽 合肥市 长丰县长丰县谯城路与梦蝶路交口
发地址到手机
咨询底价
组团砍价
加入买房群
猜你喜欢
楼盘概述:
华宇林泉雅舍
