城建琥珀东澜赋
买房交流群-161群(11)
- 楼盘区域: 安徽 合肥市 肥东县
- 项目地址: 肥东县得心路与闻水路交口东南角
- 参考价格: 10500元/平方米
- 参考总价: 105万
- 预售许可证: 东房预售证第20230024号
- 物业类型: 住宅
- 楼盘状态 在售
- 开发商: 合肥城建东庐置业有限公司
更多
交通配套
订阅楼盘最新动态,优惠、开盘早知道
本楼盘交流群
241人正在讨论
加入楼盘交流群,楼盘优劣全知道
楼盘资讯
城建琥珀东澜赋
在售
住宅
均价
10500元/㎡
降价通知
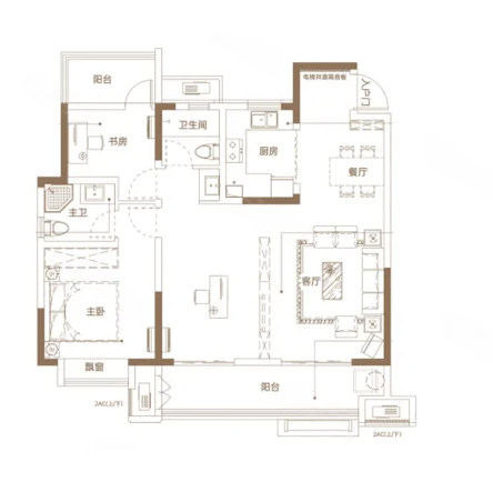
户型
三室四室
余房查询
地址
安徽 合肥市 肥东县肥东县得心路与闻水路交口东南角
发地址到手机
咨询底价
组团砍价
加入买房群
猜你喜欢
楼盘概述:
城建琥珀东澜赋
