创霖锦程澜湾
买房交流群-17群(109)
- 楼盘区域: 安徽 合肥市 蜀山区
- 项目地址: 蜀山区长江西路与豌豆洼路交叉口
- 参考价格: 9500元/平方米
- 参考总价: 85万
- 预售许可证: 合房预售证第20230836号
- 物业类型: 住宅
- 楼盘状态 在售
- 开发商: 安徽创霖世纪置业有限公司
更多
交通配套
订阅楼盘最新动态,优惠、开盘早知道
本楼盘交流群
380人正在讨论
加入楼盘交流群,楼盘优劣全知道
楼盘资讯
创霖锦程澜湾
在售
住宅
均价
9500元/㎡
降价通知
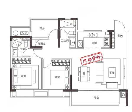
户型
三室四室
余房查询
地址
安徽 合肥市 蜀山区蜀山区长江西路与豌豆洼路交叉口
发地址到手机
咨询底价
组团砍价
加入买房群
猜你喜欢
楼盘概述:
创霖锦程澜湾
