华纺东华棠颂
买房交流群-24群(135)
- 楼盘区域: 安徽 合肥市 肥东县
- 项目地址: [肥东县 肥东经开区]临泉东路与相城路交口
- 参考价格: 待定
- 参考总价: 待定
- 预售许可证:
- 物业类型: 住宅
- 楼盘状态 待售
- 开发商: 合肥东睦置业发展有限公司
更多
交通配套
订阅楼盘最新动态,优惠、开盘早知道
本楼盘交流群
312人正在讨论
加入楼盘交流群,楼盘优劣全知道
楼盘资讯
华纺东华棠颂
待售
住宅
均价
待定
降价通知
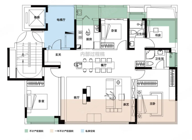
户型
3室/4室户型
余房查询
地址
安徽 合肥市 肥东县[肥东县 肥东经开区]临泉东路与相城路交口
发地址到手机
咨询底价
组团砍价
加入买房群
猜你喜欢
楼盘概述:
华纺东华棠颂
