上海古北99
买房交流群-124群(47)
- 楼盘区域: 上海 闵行区
- 项目地址: [闵行区 金虹桥]姚虹路99弄
- 参考价格: 110000元/平方米
- 参考总价: 1600万
- 预售许可证:
- 物业类型: 住宅
- 楼盘状态 在售
- 开发商: 上海宏兴房地产发展有限公司
更多
交通配套
订阅楼盘最新动态,优惠、开盘早知道
本楼盘交流群
55人正在讨论
加入楼盘交流群,楼盘优劣全知道
楼盘资讯
古北99
均价
110000元/㎡
降价通知
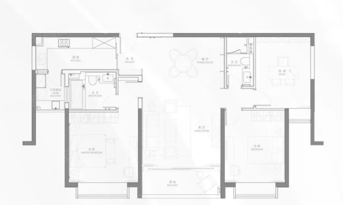
户型
2室/3室户型
余房查询
地址
上海 闵行区[闵行区 金虹桥]姚虹路99弄
发地址到手机
咨询底价
组团砍价
加入买房群
猜你喜欢
楼盘概述:
上海古北99
