信达信安里
买房交流群-261群(80)
- 楼盘区域: 上海 静安区
- 项目地址: 康定路1399弄
- 参考价格: 136000元/平方米
- 参考总价: 1060万
- 预售许可证: 静安房管(2024)预字0000378号
- 物业类型: 住宅
- 楼盘状态 在售
- 开发商: 上海信瓴置业有限公司
更多
交通配套
订阅楼盘最新动态,优惠、开盘早知道
本楼盘交流群
109人正在讨论
加入楼盘交流群,楼盘优劣全知道
楼盘资讯
猜你喜欢
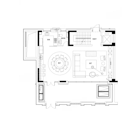
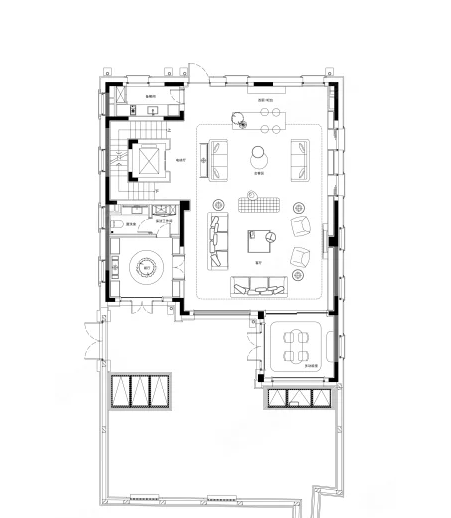
楼盘概述:
信达信安里
